photos et perspectives non contractuelles
Modernité avec une touche méditerranéenne et élégante
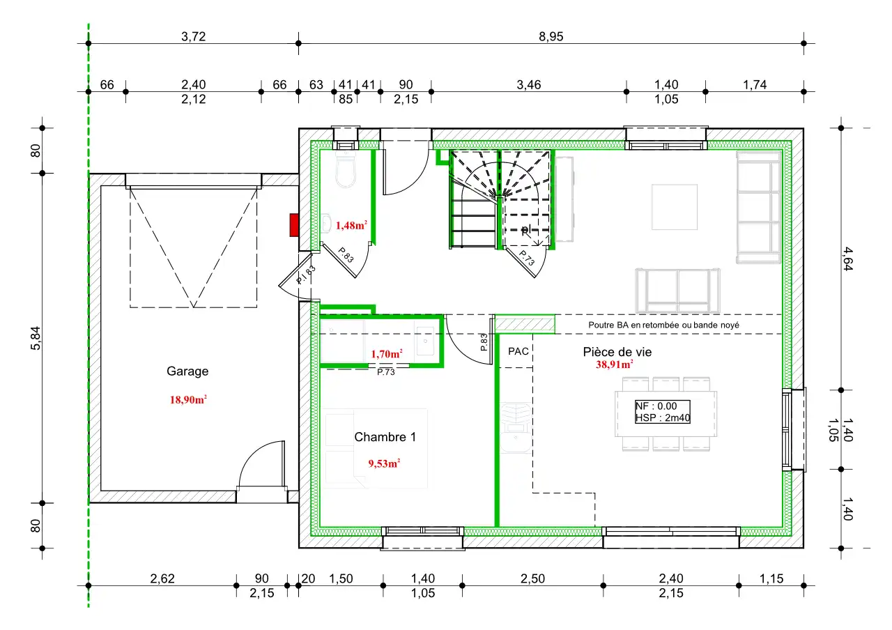
| Surface habitable | 101,29 m² |
|---|---|
| Type de maison | À étage |
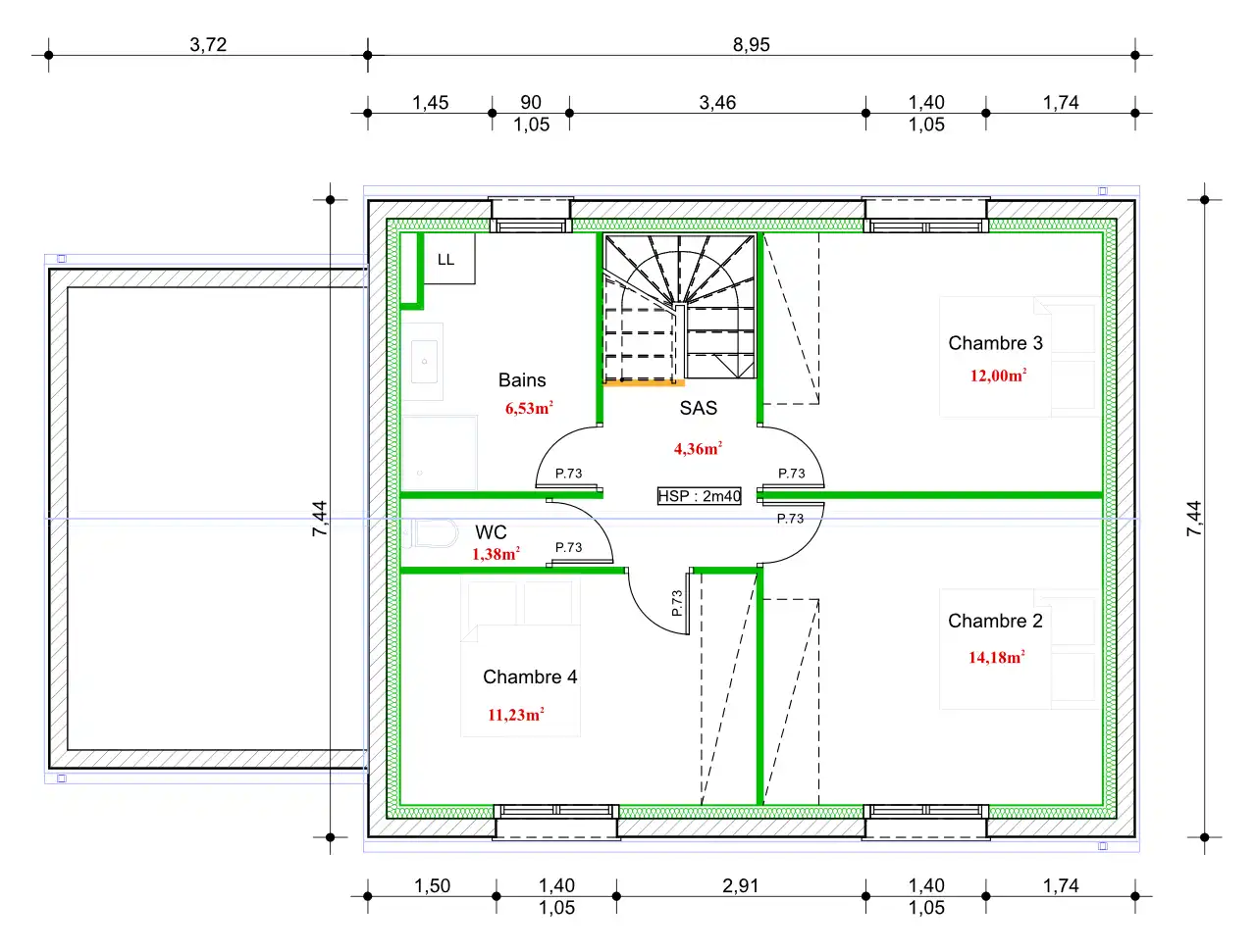
| Nombre de chambres | 4 |
| Garage | Oui |
202 900,00 €
PLAN DU RDC (51,61 m²)
PLAN DU R+1 (49,68 m²)























